Schloss Werneck: Orthopädisches Krankenhaus
(LP 1-9)
(AIT-Award 2012: Gesundheit, Pflege + Interior)
(Architektouren 2011)
Das unter Denkmalschutz stehende Barockschloss wurde durch rücksichtslose Umbauten zum Teil unwiderruflich zerstört. Durch die Sanierung und raumbildenden Ausbauten sind die bauzeitlichen Strukturen und Raumfolgen wieder ablesbar.
Das Farbkonzept orientiert sich am Deckenfresko von Tiepolo in der Würzburger Residenz. Farbwahl, Detailausbildung und Materialität stehen für die Identität des Ortes.
Die besondere Herausforderung bestand darin, ein modernes Krankenhaus mit der erforderlichen Funktionalität in einem denkmalgeschützten Schloss zu integrieren. In Kooperation mit Klinikleitung, dem Bezirk Unterfranken sowie dem Landesamt für Denkmalpflege wurde von mir diese Aufgabe projektleitend unter dem Motto „high tech+high care“ entwerferisch und baulich bearbeitet.
Die einstige Enfilade der fürstbischöflichen Räume wr in seiner Raumstruktur zerstört. Als Mahnmal dieser Ruptur markieren Messingeinleger in Wand, Decke, Boden die einstige Raumfolge. Wo bauhistorisch wertvoller Stuck durch Stahlträger verletzt ist, wird dieser teilweise originalgetreu ergänzt, in Bereichen bleibt jedoch die Leerstelle.
Ursprünglich durchgängige Raumproportionen werden durch den Rückbau störender Einbauten wiederhergestellt. Sich nach oben in Transparenz auflösende Glasbekleidungen der Sanitärzellen geben nun den Blick frei.
Die Raumfluchten der charakteristischen Flure entlang des Innenhofs werden trotz Brandschutzanforderungen mit reduzierten Mitteln freigehalten. Historisch ursprüngliche Türöffnungen werden freigelegt, repariert, geschützt, ausgekleidet und mit neuer Funktion belegt.
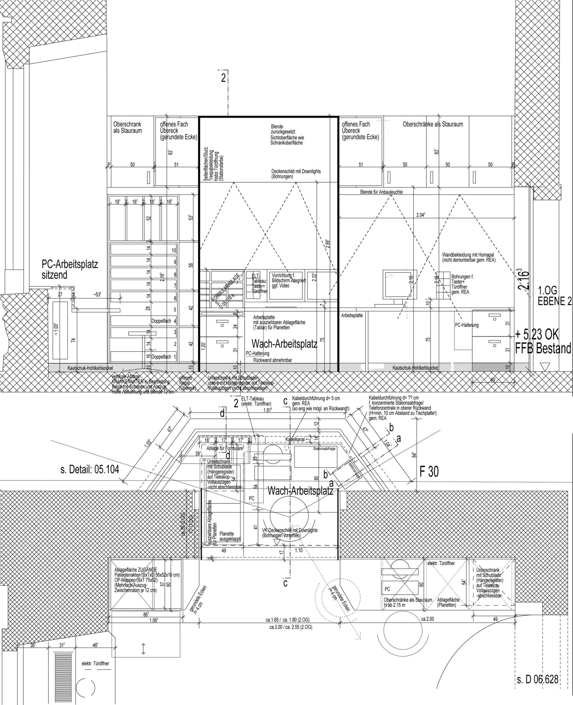
Um die Bausubstanz maximal zu erhalten, wird die umfangreiche Haustechnik schonend und intelligent untergebracht: Vertikaltrassen in vorhandenen Kaminzügen, horizontale Verteilerebenen auf Putz und hinter abnehmbaren Vertäfelungen bzw. Paneelen.
Bauzeitliche, barocke Stilelemente wie Supraporte, Wandvertäfelung, Symmetrien, Arabesken werden als „Zitat“ im Innenausbau interpretiert und fügen sich zusammen mit der dauerhaften, soliden, nachhaltigen Materialwahl in Identität und Charakter des Kulturdenkmals.
Die bestehenden Räumlichkeiten werden nach historischer Vorlage zu zeitgemäß modernen Pflegestationen umgebaut. Durch gläserne Nasszellen und Beleuchtung der Stukkaturen kann der ursprüngliche Raumzuschnitt wiedererkannt werden. Der Gartensaal wird mit eingestellten Glasboxen für die Physikalische Therapie umgenutzt. Zur Orientierung werden Stationsfarben nach Tiepolos Farbraum gewählt, die sich auf verschiedenen Einbauten und Oberflächen wiederfinden. In den Patientenzimmern tragen klassische natürliche Materialien (Eiche, Nussbaum, Echtholz-HPL, Leder, Messing, Naturstein) zum Wohlfühlen bei. Barocke Gestaltungs – und Raumelemente weden aufgegriffen und neu interpretiert wie die Patientenzimmertür, das Motiv des Supraportes und der Konsoltisch mit Spiegel.
Bauherr: Bezirk Unterfranken
Nutzer: Orthopädisches Krankenhaus Schloss Werneck
BRI / BGF: 29.660 m³, 5.850 m² (3.Bauabschnitt)
Bauzeit 3.Abschnitt: 05/2009 - 01/2011
für Stich I Ziegler I Zirngibl Architekten München:
Materialkonzept, verantwortliche Architektin, Projektleitung, Kommunikation mit Bauherr I Behörden I Projektanten
Umfang der Maßnahme (3./4. Bauabschnitt)
Ebene 0 mit Archiv, Lager, Ver-/Entsorgung, Wäsche, Technik, Versorgungstrasse
Ebene 1 (Eingangsebene) mit Patientenaufnahme, Verwaltung, Physikalische Therapie, Cafeteria, Bereitschaftsdienst; Eingriffsräume
Ebene 2 (1.OG) mit Orthopädie, Pflege, Arztdiensträumen
Ebene 3 (2.OG) mit Orthopädie, Pflege, Arztdiensträume, Patientenaufenthalt
Ebene 4 (DG) mit Lüftungszentrale, Technik












